Mitten in Bispingen, im Zentrum der Lüneburger Heide.

Home

Wohnen in der Lüneburger Heide.

Die Lüneburger Heide, eine der schönsten Naturlandschaften Norddeutschlands.

Mittendrin liegt Bispingen, ein wunderschöner Ort zum Wohnen, mit der perfekten Mischung aus Natur, Erholung und guter Infrastruktur.
Die blühende Heide im Spätsommer, die weiten Wälder und ruhigen Wanderwege machen das Leben hier besonders idyllisch.

Trotz der ruhigen Lage ist Bispingen verkehrstechnisch gut angebunden. Hamburg, Hannover und Lüneburg sind schnell erreichbar, so dass man die Vorzüge eines Dorfes mit den Möglichkeiten der Großstadt kombinieren kann.

Wer Natur, Ruhe und hohe Lebensqualität schätzt, findet in Bispingen ein echtes Zuhause.

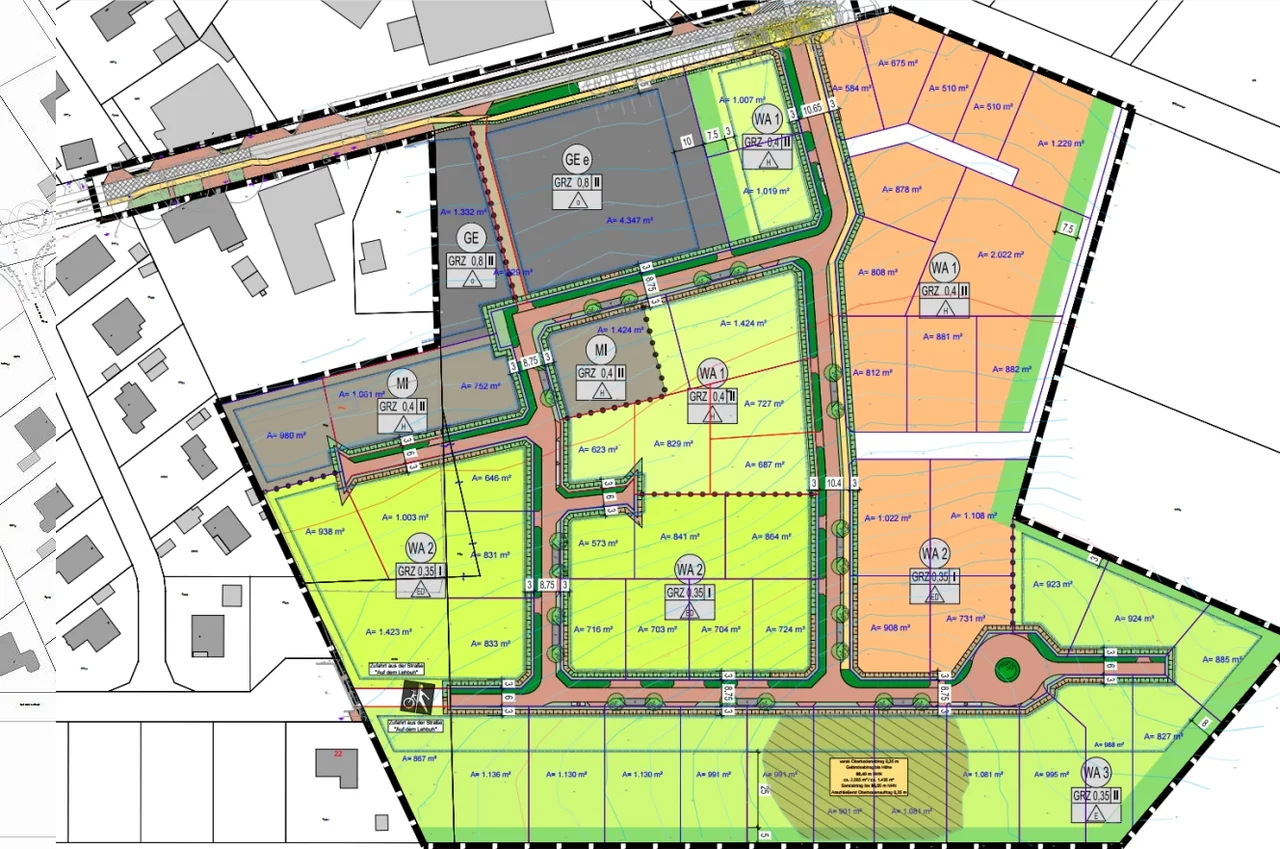
Übersicht Baugrundstücke "Am Gillenmoor"

Das Baugebiet „Am Gillenmoor“ befindet sich mitten in Bispingen, im Zentrum der Lüneburger Heide.
Der erste Bauabschnitt des Bebauungsplanes Nr.168 der Gemeinde Bispingen umfasst 34 Baugrundstücke.
Diese Grundstücke sind mit Einzel-, Doppel- und Mehrfamilienhäusern bebaubar.

Für Rückfragen zur Bebaubarkeit bzw. zur Verfügbarkeit einzelner Grundstücke sprechen Sie uns gerne an unter:

E-Mail: info@gillenmoor.de oder Telefon: 0160-93843575

Verkehr

Bispingen, ein traumhaft schöner Ort mitten in der Lüneburger Heide, besticht nicht nur durch seine natürliche Schönheit, sondern auch durch seine hervorragende Verkehrsanbindung. Diese macht es zu einem idealen Wohnort für Pendler und Naturliebhaber gleichermaßen.

Mit dem Auto ist Bispingen bequem über die Autobahn A7 zu erreichen. Die Abfahrten Bispingen und Schneverdingen bieten schnellen Zugang zu den umliegenden Städten wie Hamburg und Hannover. Dies ermöglicht eine einfache und stressfreie Anreise, sei es für den täglichen Arbeitsweg oder für Wochenendausflüge.

Natur

Die Lüneburger Heide ist bekannt für ihre weiten Heideflächen, die besonders im Spätsommer in einem leuchtenden Lila erblühen. Wander- und Radwege durchziehen die Landschaft und laden dazu ein, die Natur hautnah zu erleben.

Auf etwa 700 km Wander- und Radwegen können Sie die Landschaft erleben, die mit ihren halboffenen Heideflächen einen unverwechselbaren Charakter von Ruhe und Beschaulichkeit besitzt.

Tourismus

Das Naturschutzgebiet Lüneburger Heide ist bei Urlaubern besonders beliebt. Hier gibt es zahlreiche touristische Sehenswürdigkeiten, darunter vor allem der romantische Ort Wilsede und der Wilseder Berg. Der Totengrund ist ein einzigartiges, malerisches Tal im Herzen des Schutzgebietes.

Für Familien ist die Lüneburger Heide mit seiner Vielzahl an Freizeitparks, Tierparks und den vielen touristischen Attraktionen ein absolutes Highlight.